上林世家
更新時間:2017-05-31
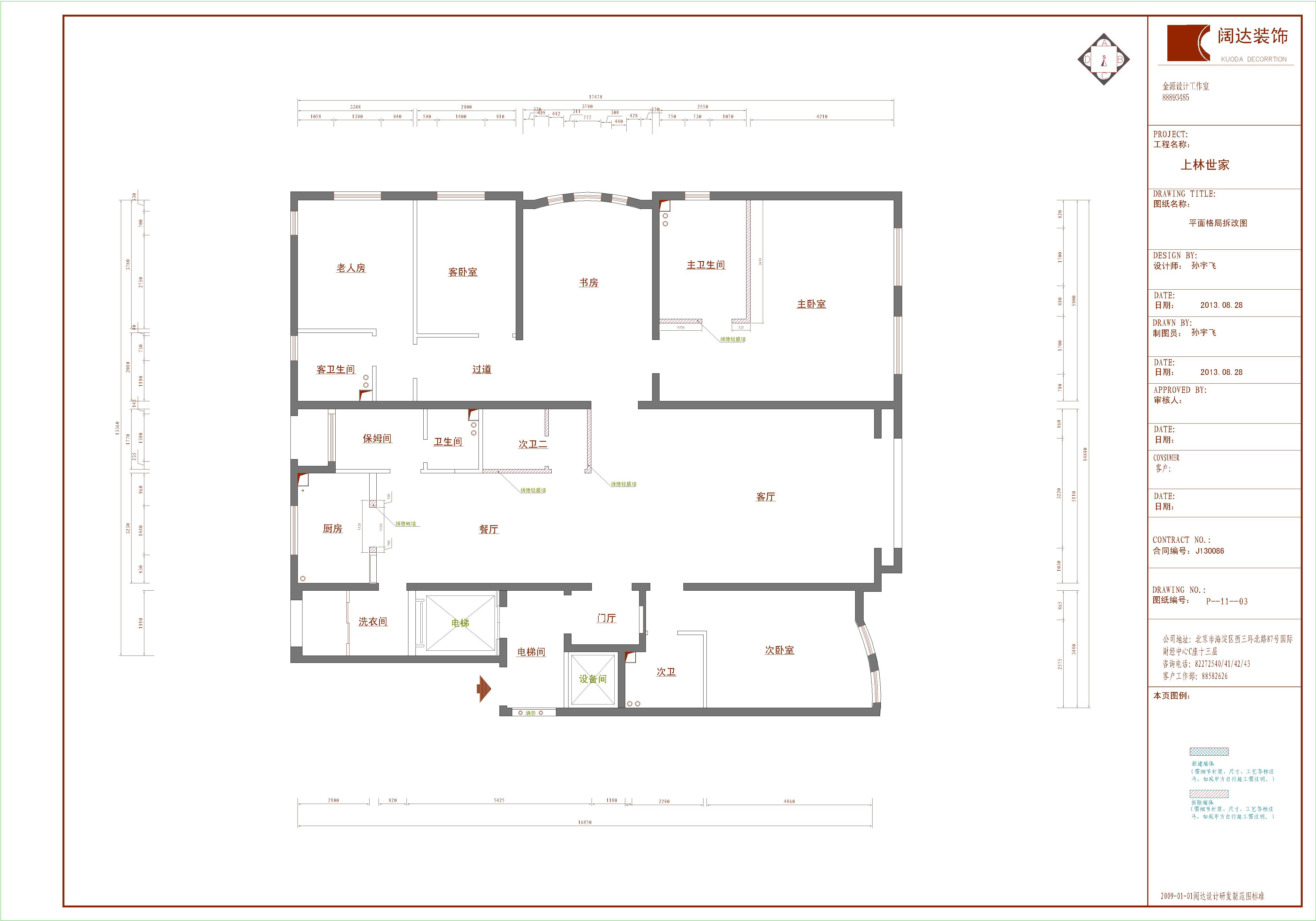
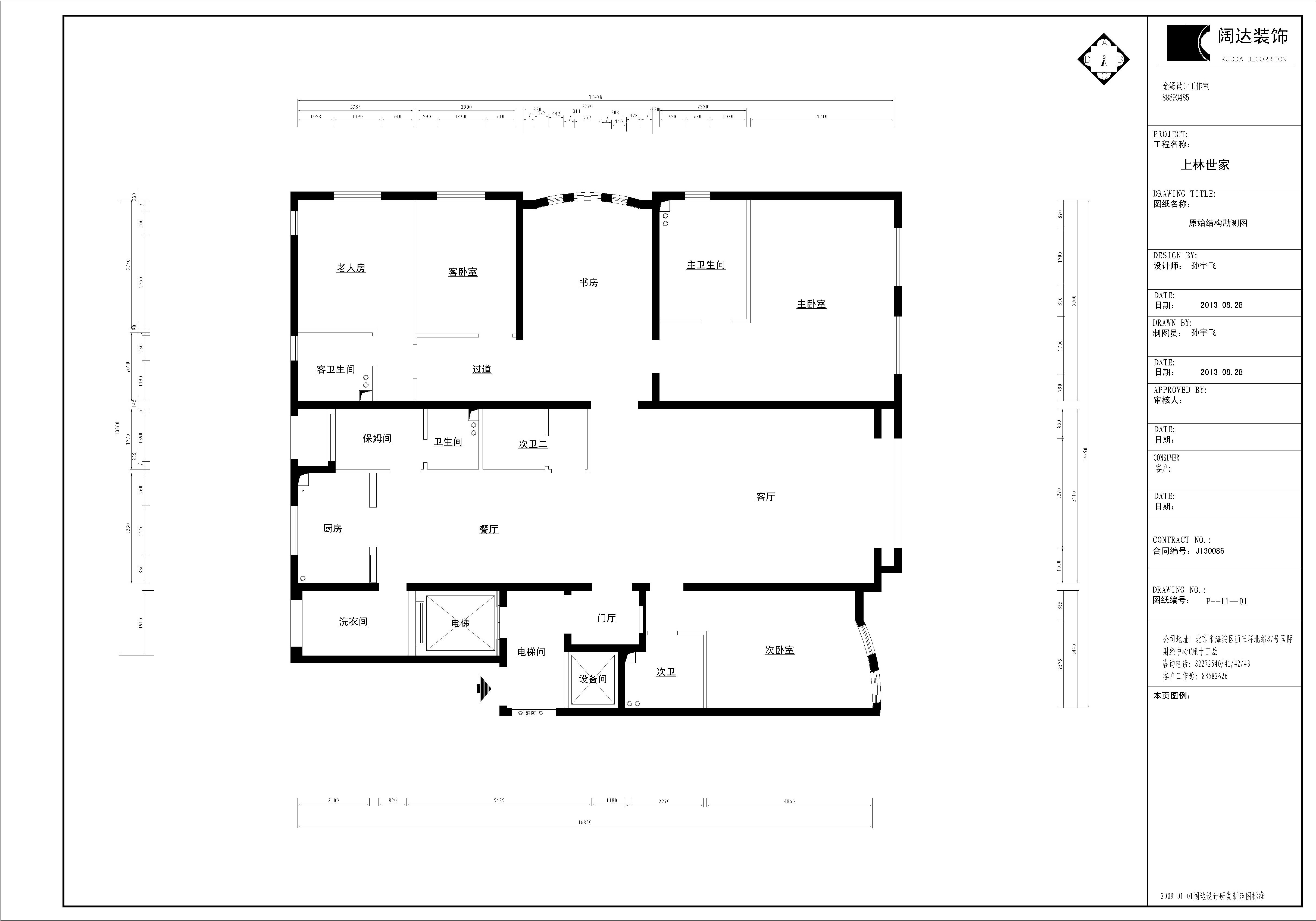
| 設計風格 | 簡約中式 | 戶型案例 | 4室2衛1廳 | 案例面積 | 270 |
|---|---|---|---|---|---|
| 樓盤名稱 | 上林世家 | 所在城市 | 北京 | 案例造價 | 12萬(不含主材) |
| 設計師 | 孫宇飛 | ||||

案例說明:
空間上講究層次,多用隔窗、屏風來分割,用實木做出結實的框架,以固定支架,中間用欞子雕花,做成古樸的圖案。門窗對確定中式風格很重要,用實木雕刻,打磨光滑,富有立體感。客廳是傳統與現代居室風格的碰撞,
以現代的裝飾手法和家具,結合古典中式的裝飾元素,來呈現亦古亦今的空間氛圍。中式風格的古色古香與現代風格的簡單素雅自然銜接,
使生活的實用性和對傳統文化的追求同時得到了滿足。背景墻的造型簡潔現代,這種絕妙的組合給人以強烈的視覺意志力,成為時尚與古典的柔媚結合。
建筑本身的中式韻味讓我們更向往和喜愛中國式的山、水、樹、情與生活。
同風格案例:更多>>
同面積案例:















京公網安備 11010802032436號