潤澤莊園
更新時間:2017-02-14
| 設計風格 | 現代 | 戶型案例 | 別墅 | 案例面積 | 400 |
|---|---|---|---|---|---|
| 樓盤名稱 | 潤澤莊園 | 所在城市 | 北京 | 案例造價 | 50萬 |
| 設計師 | 徐傳兵 | ||||

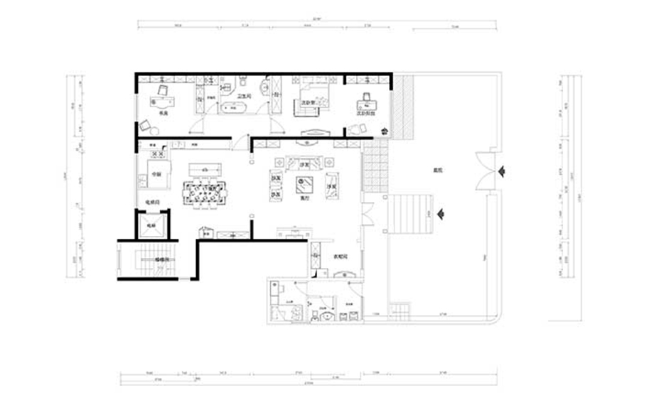
案例說明:
通過與業主溝通,了解家庭成員夫妻和兒子居住和使用需求,結合房屋本身的結構特點,入戶門正對客廳,客廳私密性不好,門廳要大滿足主人實用功能,還要體現玄關功能.客廳與餐廳空間沒有有效劃分,另外廚房中西廚的處理要考慮實用性和裝飾性。"門廳做了整體衣帽柜,滿足實用功能,拆除部分隔墻,增大了客廳及門廳間的通道,使整個空間更加開闊。造型啞口的設計,
簡約而不簡單,奠定了整套居室的風格。門廳的拼
花地磚及波打線的配合,整個空間更感大氣。
主臥室:以為主臥面積較小,所以衣柜采用白色混,這樣看起來不會占用太多空間 飄窗作為一小憩的地放。
餐廳區域:次區域改動較大,把餐廳和陽臺原有的墻面拆除了,餐廳和廚房的門洞改大,變成了開放式廚房,這也是此區域的亮點,主要功能和生活舒適度怎加了不少。
同風格案例:更多>>
同面積案例:










京公網安備 11010802032436號