天潤福熙大道
更新時間:2017-05-31
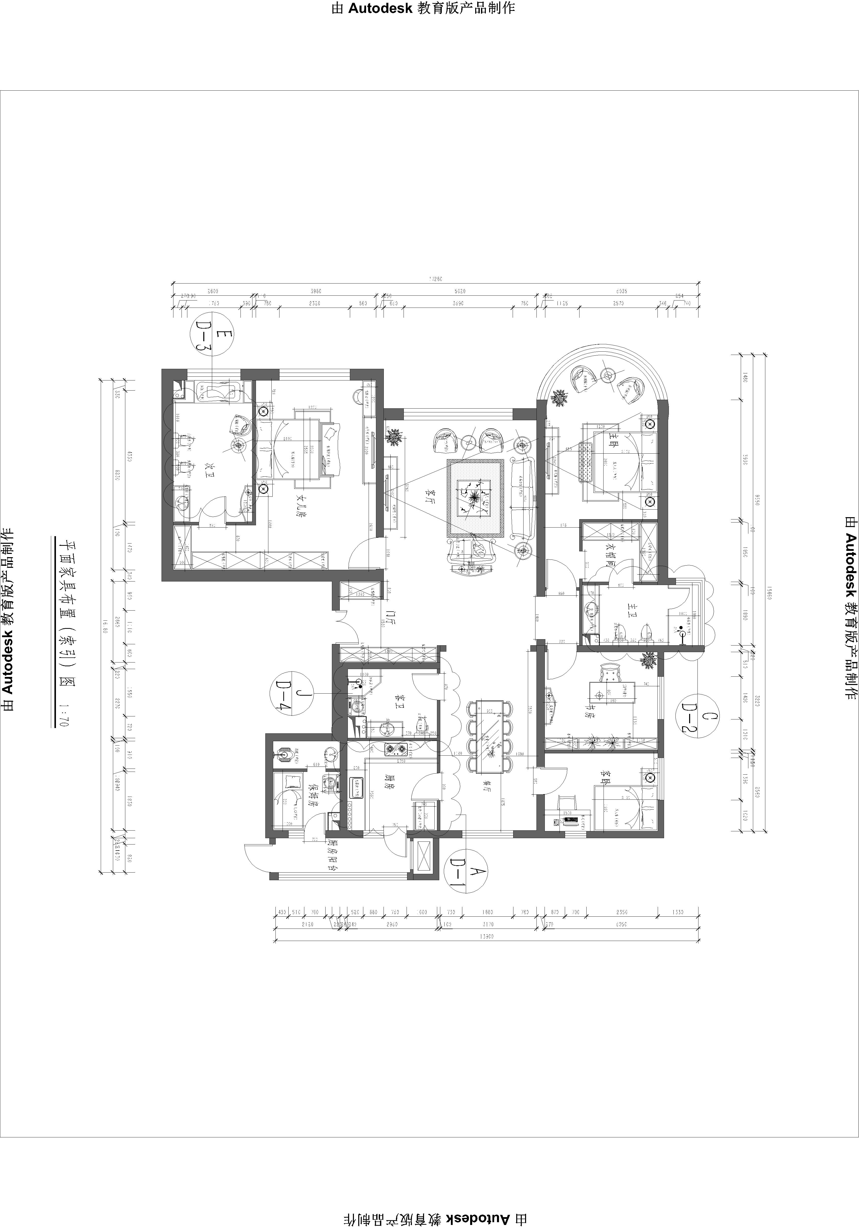
| 設計風格 | 現代簡約 | 戶型案例 | 4室3衛1廳 | 案例面積 | 251 |
|---|---|---|---|---|---|
| 樓盤名稱 | 天潤福熙大道 | 所在城市 | 北京 | 案例造價 | 18萬(不含主材) |
| 設計師 | 李瑞 | ||||

案例說明:
本案設計風格是現代簡約風格,意在營造典雅,自然,純凈,奢適的自然空間。客廳是家人活動的公共空間,墻面設計采用石材與白色護墻板,大面積的淺色背景色襯托出空間的開敞感。頂面采用有層次的石膏線條,意在表現空間的韻律感和現代感。藉著室內空間的解構和重組,使整個居室空間實現‘過去’‘現在’‘未來’的和諧統一,使主人感動于生活的寧靜和安逸同風格案例:更多>>
同面積案例:











京公網安備 11010802032436號